客室 Guestroom

“異文化の融合”を体現した
ゲストルーム
18のスイートルームを含む全315の客室は37平米以上のゆったりとした空間に、横浜開港の地らしい日本の伝統美と西洋のデザインが融合され、洗練されたスタイリッシュな雰囲気です。
黒を基調とした落ち着いた室内でひときわ目を引くヘッドボードの屏風は武家の風習にインスパイアされており、お客様をおもてなしする気持ちを込めて備え付けられています。
客室一覧
- スイート
- クラブ
- デラックス
- スタンダード
大きなソファが配置されたリビングルームと、ベッドルームが別々に設けられ、心ゆくまでゆっくりとおくつろぎいただけます。お誕生日や記念日などの特別な滞在にぜひご利用ください。
広々としたバスルームと、こだわりのダブルシンクを採用した独立洗面台がございますので、ゆっくりとご支度いただけます。
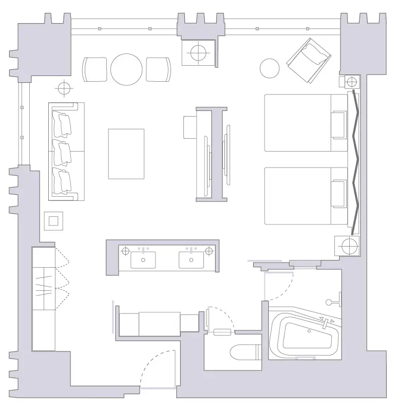
リージェンシースイート ツイン 2台
74平米のスイートルーム。
地上50メートル以上から見渡す景色は、季節ごとに表情を変える美しい横浜の街並みをお楽しみいただけます。
ベッドルームにはセミダブルサイズのベッド2台、リビングルームには大きなソファが配置され、心ゆくまでゆっくりとおくつろぎいただけます。
ウォッシュルームはバスルームと完全セパレートでダブルシンクとなっております。 リージェンシークラブラウンジでのチェックイン / アウト、朝食やカクテルタイムなどを無料でご利用いただけ、より充実したホテルステイをご満喫いただけます。
| 専有面積(m2) | 74平米 |
|---|---|
| ベッドサイズ(cm) | 140 × 203 |
| 宿泊人数 | 1~2人 |
リージェンシースイート キング 1台
74平米のスイートルーム。
地上50メートル以上から見渡す景色は、季節ごとに表情を変える美しい横浜の街並みをお楽しみいただけます。
ベッドルームにはキングサイズのベッドが1台、リビングルームには大きなソファが配置され、心ゆくまでゆっくりとおくつろぎいただけます。
ウォッシュルームはバスルームと完全セパレートでダブルシンクとなっております。リージェンシークラブラウンジでのチェックイン / アウト、朝食やカクテルタイムなどを無料でご利用いただけ、より充実したホテルステイをご満喫いただけます。
| 専有面積(m2) | 74平米 |
|---|---|
| ベッドサイズ(cm) | 200 × 203 |
| 宿泊人数 | 1~2人 |
ベイビュースイート ツイン 2台
77平米のスイートルーム。
地上50メートル以上の高さからは晴れた日には房総半島まで見渡せ、日中は山下公園の象徴といえる氷川丸や港を行き交うクルーズ船、夜は横浜ベイブリッジやふ頭のエキゾチックな夜景と一日中見ていても飽きないドラマチックな横浜港の景色がご堪能いただけます。
ベッドルームにはセミダブルサイズのベッド2台、リビングルームには大きなソファが配置され、心ゆくまでゆっくりとおくつろぎいただけます。
ウォッシュルームはバスルームと完全セパレートでダブルシンクとなっております。リージェンシークラブラウンジでのチェックイン / アウト、朝食やカクテルタイムなどを無料でご利用いただけ、より充実したホテルステイをご満喫いただけます。
| 専有面積(m2) | 77平米 |
|---|---|
| ベッドサイズ(cm) | 140 × 203 |
| 宿泊人数 | 1~2人 |
ベイビュースイート キング 1台
77平米のスイートルーム。
地上50メートル以上の高さからは晴れた日には房総半島まで見渡せ、日中は山下公園の象徴といえる氷川丸や港を行き交うクルーズ船、夜は横浜ベイブリッジやふ頭のエキゾチックな夜景と一日中見ていても飽きないドラマチックな横浜港の景色がご堪能いただけます。
ベッドルームにはキングサイズのベッドが1台、リビングルームには大きなソファが配置され、心ゆくまでゆっくりとおくつろぎいただけます。
ウォッシュルームはバスルームと完全セパレートでダブルシンクとなっております。リージェンシークラブラウンジでのチェックイン / アウト、朝食やカクテルタイムなどを無料でご利用いただけ、より充実したホテルステイをご満喫いただけます。
| 専有面積(m2) | 77平米 |
|---|---|
| ベッドサイズ(cm) | 200 × 203 |
| 宿泊人数 | 1~2人 |
「リージェンシークラブラウンジ」がご利用いただけますので、チェックイン/チェックアウトをはじめ朝食やティータイム、カクテルタイムのブレイクタイムをお過ごしください。
地上50メートル以上から見渡す景色は横浜ならではの数々のランドマークをお楽しみいただけます。
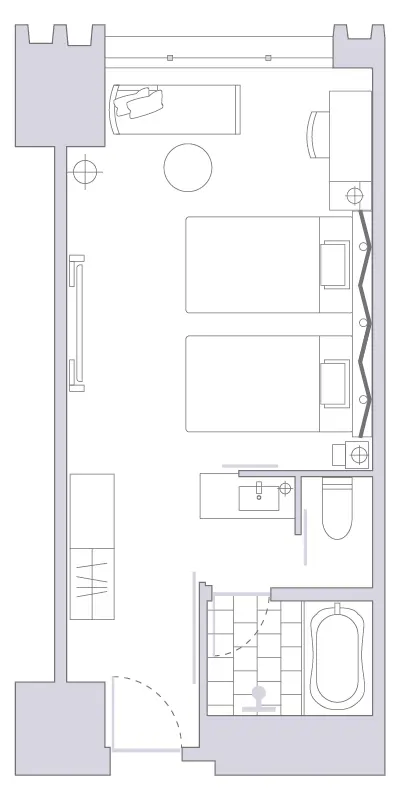
ツイン 2台, クラブアクセス
37平米の客室。
地上50メートル以上から見渡す景色は横浜港から元町エリア、関内エリアからみなとみらいに広がり、横浜ならではの数々のランドマークをお楽しみいただけます。室内にはセミダブルサイズのベッド2台と、窓際にはライティングデスクを配置。くつろぎとビジネスの空間を分けてご使用いただける、シンプルながらも使い勝手の良い客室です。リージェンシークラブラウンジでのチェックイン / アウト、朝食やカクテルタイムなどを無料でご利用いただけ、 より充実したホテルステイをご満喫いただけます。
| 専有面積(m2) | 37平米 |
|---|---|
| ベッドサイズ(cm) | 120 × 203 |
| 宿泊人数 | 1~2人 |
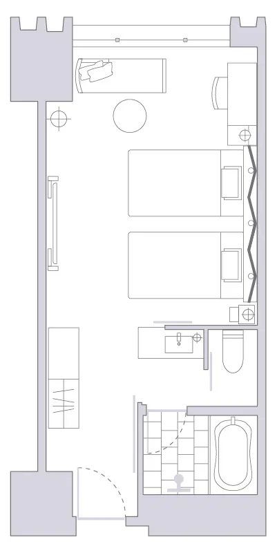
キング 1台, クラブアクセス
37平米の客室。
地上50メートル以上から見渡す景色は横浜港から元町エリア、関内エリアからみなとみらいに広がり、横浜ならではの数々のランドマークをお楽しみいただけます。室内にはキングサイズのベッド1台と、窓際にはライティングデスクを配置。くつろぎとビジネスの空間を分けてご使用いただける、シンプルながらも使い勝手の良い客室です。リージェンシークラブラウンジでのチェックイン / アウト、朝食やカクテルタイムなどを無料でご利用いただけ、より充実したホテルステイをご満喫いただけます。
| 専有面積(m2) | 37平米 |
|---|---|
| ベッドサイズ(cm) | 200 × 203 |
| 宿泊人数 | 1~2人 |
異なる3タイプから成る客室は、屏風をモチーフとしたベッドボードや伝統工芸品を表現したオブジェから感じる和の伝統美と、黒を基調としたスタイリッシュなデザインを癒合し、「異文化の街、横浜」を体感いただけます。
デラックスツイン 2台
37平米の客室。
窓からは高層階から望む横浜の街並みがご覧いただけます。セミダブルサイズのベッド2台と、窓際にはライティングデスクを配し、くつろぎとビジネスの空間を分けてご使用いただけるシンプルながらも使い勝手の良い客室です。
ゆったりとしたバスルームにはレインシャワーも備え、癒しのひと時をお過ごしいただけます。
| 専有面積(m2) | 37平米 |
|---|---|
| ベッドサイズ(cm) | 120 × 203 |
| 宿泊人数 | 1~2人 |
デラックス キング 1台
37平米の客室。
窓からは高層階から望む横浜の街並みがご覧いただけます。キングサイズのベッド1台と、窓際にはライティングデスクを配し、くつろぎとビジネスの空間を分けてご使用いただけるシンプルながらも使い勝手の良い客室です。
ゆったりとしたバスルームにはレインシャワーも備え、癒しのひと時をお過ごしいただけます。
| 専有面積(m2) | 37平米 |
|---|---|
| ベッドサイズ(cm) | 180 × 203 |
| 宿泊人数 | 1~2人 |
デラックス ツイン 2台, エキストラベッド 1台
39平米の客室。
窓からは高層階から望む横浜の街並みがご覧いただけます。
セミダブルサイズのベッド2台とシングルサイズのエキストラベッドが1台配置されており、ご家族やグループでのご宿泊にもご利用いただけます。
ゆったりとしたバスルームにはレインシャワーも備え、癒しのひと時をお過ごしいただけます。
| 専有面積(m2) | 39平米 |
|---|---|
| ベッドサイズ(cm) | 120 × 203(2台) 95 × 185 (1台) |
| 宿泊人数 | 3人 |
異なる4タイプから成る客室は、屏風をモチーフとしたベッドボードや伝統工芸品を表現したオブジェから感じる和の伝統美と、黒を基調としたスタイリッシュなデザインを癒合し、「異文化の街、横浜」を体感いただけます。
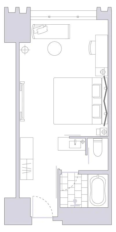
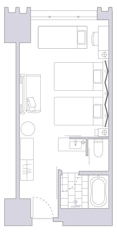
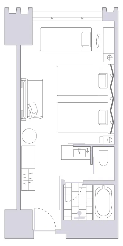
ツイン 2台
37平米のもっともスタンダードな客室。
セミダブルサイズのベッド2台と、窓際にはライティングデスクを配し、くつろぎとビジネスの空間を分けてご使用いただけるシンプルながらも使い勝手の良い客室です。
ゆったりとしたバスルームにはレインシャワーも備え、癒しのひと時をお過ごしいただけます。
| 専有面積(m2) | 37平米 |
|---|---|
| ベッドサイズ(cm) | 120 × 203 |
| 宿泊人数 | 1~2人 |
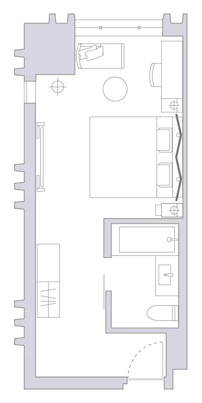
キング 1台
37平米のもっともスタンダードな客室。
キングサイズのベッド1台と、窓際にはライティングデスクを配し、くつろぎとビジネスの空間を分けてご使用いただけるシンプルながらも使い勝手の良い客室です。
ゆったりとしたバスルームにはレインシャワーも備え、癒しのひと時をお過ごしいただけます。
| 専有面積(m2) | 37平米 |
|---|---|
| ベッドサイズ(cm) | 180 × 203 |
| 宿泊人数 | 1~2人 |
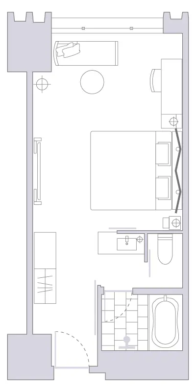
キング 1台,コーナー
38平米のコーナールーム。キングサイズのベッド1台が配置された室内は、二方向から差し込む光で明るく照らされ、夜は山下町のダイナミックな夜景をお楽しみいただけます。
3点ユニットバスタイプのバスルームはコンパクトながらも、ゆったりとしたバスタブがあり、ご使用いただきやすい仕様となっております。
| 専有面積(m2) | 38平米 |
|---|---|
| ベッドサイズ(cm) | 200 × 203 |
| 宿泊人数 | 1~2人 |
ツイン 2台, エキストラベッド 1台
39平米の客室。
セミダブルサイズのベッド2台とシングルサイズのエキストラベッドが1台配置されており、ご家族やグループでのご宿泊にもご利用いただけます。
ゆったりとしたバスルームにはレインシャワーも備え、癒しのひと時をお過ごしいただけます。
| 専有面積(m2) | 39平米 |
|---|---|
| ベッドサイズ(cm) | 120 × 203(2台) 95 × 185 (1台) |
| 宿泊人数 | 3人 |
| アメニティ・備品 |
|
|---|---|
| 貸出備品 |
|